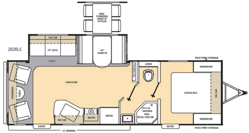
This Coachmen Catalina travel trailer 263RLS offers rear living with plenty of conveniences, and a large slide for added space, plus dual entry doors.
As you enter the rear side door you will find a rear living area which includes two lounge chairs with an end table between, and overhead storage the entire width of the unit.
There is a slide out 70" sofa and 45" booth dinette which provides plenty of seating during mealtime and more. An entertainment center nearby can be seen easily by any seating in the room.
There are camping conveniences in the kitchen with a refrigerator, three burner range with overhead microwave, and a large kitchen sink, plus storage.
Walk through the bath area to the front bedroom with its own private entry door. The bath offers a 34" x 34" angled shower pan with glass door and sink with medicine cabinet on the right side, and a toilet area with linen storage above on the left side.
The front private bedroom features a queen size bed, wardrobes on each side of the bed, overhead cabinets, and more.
You will also love the front exterior pass-through storage compartment for all of your outdoor camping gear. You can also add an optional free standing dinette in place of the booth if you choose.
Features
Features
Standard Features (2017)
Exterior
Cambered Structural Steel I-Beam Frame (w/ full width out riggers)
3/8" Fully Decked Walk-On Roof
One-Piece Seamless Walkable Roof
Radius Entry Steps
5/8" Tongue & Groove Plywood Floor Decking
R-7 Fiberglass Insulation in Sidewalls, Roof & Floor
Silver E-Coat Maintenance Free Wheels
G-20 Tinted Windows
Rain Gutters w/Molded Downspouts
Platinum .024" Aluminum Exterior Skin w/.030" Skirt Metal
Painted Bumper w/Drain Hose Carrier and End Caps
Radius-Cornered Fiberglass Entrance Door
Roto-Cast Holding Tanks
Flush Mount Baggage Doors that are Lockable and Radius Cornered
Polished Aluminum Fender Skirts
Self-Adjusting Brakes
110V GFCI Protected Exterior Receptacle
30-Amp Electrical Service w/Deluxe 110V 45-Amp Power Converter
City Water Hookup
Solar Power Prep
Rear Vision Camera Prep
Interior
Large pot & pan drawer
Full length drawer (1) underneath dinette
Under-bed storage, bed lifts easily on 2 gas struts
2 Shirt closets with mirrors
Fireplace at the base of the entertainment center (233DS, 243RBS, 293RBKS, 293RLDS, 323TSQB, 333RETS, 343QBDS)
Standard Fireplace at the base of the entertainment center and in the bedroom (333RETS only)
Bell Camper Sales is not responsible for any misprints, typos, or errors found in our website pages. Any price listed excludes sales tax, registration tags, and delivery fees. Manufacturer pictures, specifications, and features may be used in place of actual units on our lot. Please contact us @918-333-5333 Bartlesville or (918) 234-0000 Tulsa for availability as our inventory changes rapidly. All calculated payments are an estimate only and do not constitute a commitment that financing or a specific interest rate or term is available.
Manufacturer and/or stock photographs may be used and may not be representative of the particular unit being viewed. Where an image has a stock image indicator, please confirm specific unit details with your dealer representative.